43
$459,900 Sale
Listed 23 hours ago
41 CEDARBUSH CRESCENT
· 2
· 1.0
· 2
· 700 - 1100
Key Facts
Key facts for 41 CEDARBUSH CRESCENT
Property Type
House, House
Parking
Garage: No, 2 parking
MLS #
X12460233
Size
700 - 1100 sqft
Basement
-
Listed on
-
Lot size
-
Tax
-
Days on Market
-
Year Built
-
Maintenance Fee
$593/mo
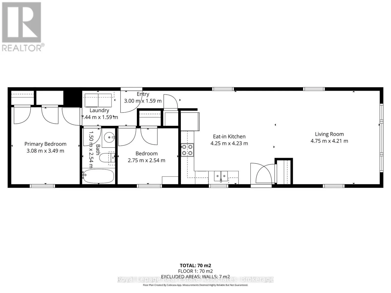
Description
Welcome to Mini Lakes! This lovely 2-bedroom bungalow is perfect for first-time buyers or those ready to downsize. Enjoy a bright open-concept living space with a spacious kitchen, stainless steel appliances (between 2019 - 2023), and a cozy living room with large windows and luxury vinyl flooring (...2022), & main floor laundry (2015) for added convenience. Step onto your private deck for summer BBQs or relax by the scenic water's edge, where nature thrives. As a resident, you'll have access to a heated inground pool, bocce ball area, and community events that foster friendship and fun. With updates like a new furnace and A/C (2022) and a roof replacement (2018), you can move in worry-free. Mini Lakes isnt just a home; its a lifestyle! Come see the charm for yourself! (id:10452)
Similar Properties (No results)
Room Types
Bedroom 2
-
Dimensions 2.84 m x 3.45 m
105.46 sqft
Kitchen
-
Dimensions 4.45 m x 4.57 m
218.9 sqft
Living room
-
Dimensions 4.87 m x 4.57 m
239.56 sqft
Listing courtesy of: Royal Lepage Real Estate Associates
This REALTOR.ca listing content is owned and licensed by REALTOR® members of The Canadian Real Estate Association.